iSlide

La corredera aislante

Presupuesto Gratis

Plazas limitadas por zona para garantizar rápidos tiempos de instalación

Ventana iSlide

Se acabó tener que elegir entre ahorro, luminosidad y diseño. Este sistema es la alternativa ideal a otras correderas, ya que a las prestaciones de aislamiento más altas que proporciona la Thermofibra, hay que añadir un acabado elegante gracias a su cuidado diseño. Además, permite tener la máxima luminosidad gracias a su reducida sección central de sólo 35 mm, la más esbelta y elegante de todos los sistemas deslizantes de PVC, y ello sin renunciar a las altas prestaciones de una buena ventana

Este nuevo sistema realza las prestaciones de aislamiento y rigidez de la innovadora y exclusiva tecnología de la Termofibra, que nos permitirá disfrutar de un aislamiento térmico y acústico muy superior a lo esperado en cualquier otra ventana deslizante.

Transmitancia térmica

Uf (W/m²·K) = 1,4

Permeabilidad al aire

Clase 4

Estanqueidad al agua

Clase 7B

Resistencia al viento

Clase B2

Aislamiento acústico

de 28 a 33 dB

Material de fabricación

PVC

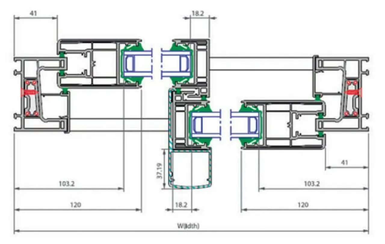
Características técnicas

  • Material: PVC
  • Profundidad:
    • 70 mm en marco
    • 46 mm en hoja
  • Marco: PVC con refuerzo de acero
  • Hoja: PVC con ThermoFibra
  • Colores: según carta
  • Tipo de apertura: corredera
  • Acristalamientos:
    • 28 mm
  • Herrajes:
    • Capacidad: hasta 200 kg
    • Herraje: hasta 4 puntos de cierre
    • Bulones: tipo champiñón de serie
  • Transmitancia térmica:
    • Uf (W/m²·K) = 1,4
  • Estanqueidad al agua: Clase 7B
  • Permeabilidad al aire: Clase 4
  • Resistencia al viento: Clase B2
  • Aislamiento acústico: de 28 a 33 dB

Dimensiones máximas por hoja

  • Hoja estándar: 1840 / 2446
  • Peso por hoja: hasta 200 kg

Dimensiones mínimas por hoja

  • Hoja estándar: 330 / 286
  • Peso por hoja: 0 kg (tal como figura en la tabla)
  • Marcado CE
  • CTE
  • Ventanas de altas prestaciones
  • 100% reciclable
  • Accesible
Personaliza tus ventanas

Con más de 50 colores disponibles agrupados en 5 familias, ofrecemos la más amplia gama de soluciones estéticas para reflejar su estilo y adaptarse a la perfección a las necesidades de su fachada, tanto por el exterior como por el interior.

Triple vidrio

La adecuada combinación de perfil y vidrio es la que nos da la capacidad de aislamiento de la ventana. Por eso es importante elegir un vidrio de calidad y adecuado que maximice las prestaciones de las ventanas SUMUM. Nuestras ventanas se fabrican con triple vidrio para maximizar todas sus ventajas.

Detalles de vidrios

La separación mediante una cámara de aire aumenta el aislamiento térmico.

La separación mediante una cámara de aire aumenta el aislamiento térmico.

La separación mediante una cámara de aire aumenta el aislamiento térmico.

La separación mediante una cámara de aire aumenta el aislamiento térmico.

La separación mediante una cámara de aire aumenta el aislamiento térmico.

Así son las ventanas Sumum de altas prestaciones

Solicita tu presupuesto gratuito